


地址:北京市密云區高嶺鎮政府辦公樓
王經理 13393261468
Q Q:514468705/1049705527
郵箱:jhcxkj@163.com
項目簡介
南寧東站,是一座在建的高度古代化的鐵路客運特等站,屬南寧鐵路局統轄。本站爲南廣高鐵、廣西濱海城際高鐵與柳南城際高鐵的交匯點,是廣西地域最重要的鐵路客運樞紐與規劃最大鐵路客運站,建成后將成爲中國東北方最大的火車站之一。
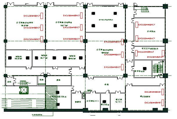
本工程機房精密空調次要使用于出站夾層E區的3間信號電源及繼電室(南欽場、南廣場和柳南場),1間信息機房,1間防災安全監控機房和1間通訊機器室。
3間信號電源及繼電室均爲180㎡,信息機房72㎡,防災安全監控機房42㎡,通訊機器室98㎡。
立體安置如圖所示:

鐵路站房設備機房空調瑣細特色
鐵路站房里有少數設備房間,其特色是一般設在建筑內區,圍護結構的保溫功用很棒,電子設備發熱量大( 散熱方針400~2000 W/㎡ ),其間95% 以上爲顯熱,即使在夏日也需供冷。爲確保電子設備動搖的使命環境,要求爲機房效勞的空調機必需全年8760h連續工作。因此機房規劃不只要重視機房空調設備的節能, 更要確保機房空調及瑣細的可靠性。
工藝專業提出的機房環境條件如下:
1) 主機房( 開機時) 溫度( 23±1)℃,肯定濕度爲40%~55%,不能結露。溫度改變率( 開、停機時)< 5 ℃/h。
2) 應確保房間的正壓,主機房與其他房間、走廊的壓差不小于5 Pa,與室外壓差不小于10 Pa。
3) 空調瑣細的新風量應按下列兩項中的較大值中止選取:1、按使命人員核算, 每人40 m³/h;2、維持室內正壓所需風量。
4) 主機房內的空氣含塵濃度, 在靜態條件下測驗, 空氣中粒徑大于或等于0.5μm 的塵粒數應少于18000粒/L。
氣流組織規劃
電子設備用房應盡可以與一般建筑及內部環境阻隔。一旦室內封閉, 必需確保高效的空氣活動, 完結以最少的能量打掃最多的設備熱量。
本項目均選用上送風風管方法送風,這種送風方法的好處在于:
1、通訊設備是上走線方法,機房內無活動地板,空調機組所需加濕給水管、冷凝水排水管均爲明安置,一旦有漏水景象,能快速發現,及時打掃,消弭惹起機房不安全的要素。
2、機房內沒有活動地板,不易積灰,即使房間有塵埃,清算打掃很便利,從而使空調機組的過濾網運用工夫長,添加保護辦理的使命量。
項目設備設置
該項目選用風冷型機房精密空調,此種機型設備及保護肯定雜亂,具有較高能效比。

項目總結
跟著鐵路信息化樹立的不時展開,鐵路通訊網絡成爲確保行車安全、進步運送效率的重要工具。爲此就要求站房信號電源及繼電室、信息機房、防災安全監控機房等相關設備機房必需暫時處于連續動搖的工作形狀中。作爲機房設備動搖工作環境的確保,空調瑣細工作的連續動搖和可靠性就顯得至關重要。
EK空調爲此項目供給的全部機組均選用美國谷輪的全封閉高效渦旋式緊縮機,內置于室內機組,能365天×24小時動搖無缺點工作。高效大面積平板式換熱器,無效提高顯熱比,下降工作費用。室外冷凝器選用高強度耐腐蝕噴涂鋼板,適用于各種惡劣環境和氣候。機組選用工業級機房共用操控器,可對室內環境溫濕度完結精準操控,同時操控器裝備RS485通訊接口,用于近程會集監控,便利機組操控與監管。全部機組均具有掉電回憶功用,來電自啟功用,雙機切換輪值和備份使命等特色。
EK機房精密空調爲您的高速游覽供給動搖確保。
文章來源:機房精密空調 http://www.groot360.com/